Москва, БЦ STONE Ходынка 1
г. Москва, БКЛ ЦСКАХодынский бульвар, 6/2
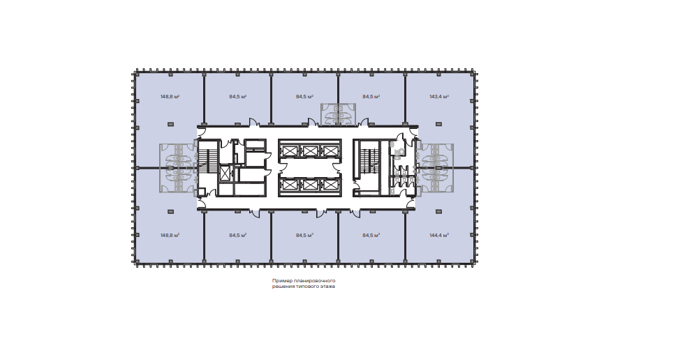
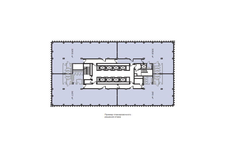
Описание
Общая площадь - 102 700 м2
Офисные помещения - 65 000 м2
Девелопер STONE
Высота потолков - 3,65 м
Паркинг - 225 м/м
От 13 до 23 этажей
Ввод в эксплуатацию - 2027г.
Офисы в продажу от 42 м2 до 1 700 м2
Цена продажи - от 525 000 руб/м2
