Москва, БЦ STONE Курская
г. Москва, м. Курская, ЧкаловскаяКостомаровский переулок, д. 5
Описание
Общая площадь - 17 150 м2
Девелопер STONE
Высота потолков - 3,65 м
10 этажей
Парковка - 59 машиномест
Введен в эксплуатацию - 2025г.
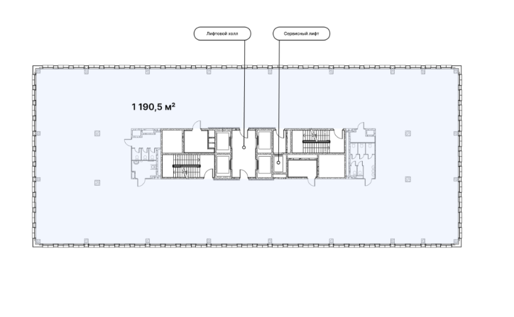
Офисы в продажу от 1 185 м2
Цена продажи по запросу
