Москва, БЦ Мираполис
г. Москва, МЦК РостокиноПроспект Мира, д. 222
Описание
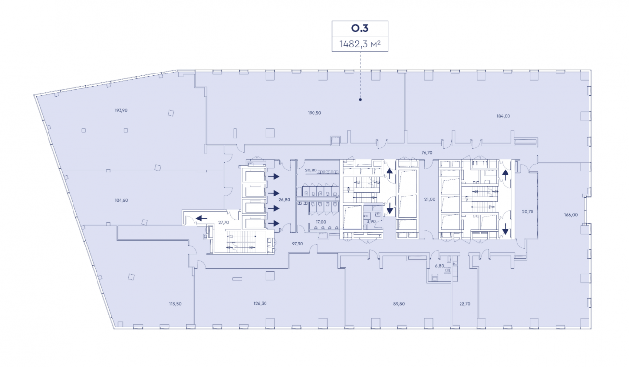
Общая площадь - 7 300 м2
Девелопер Основа
Высота потолков - 3,3 м
Срок сдачи - 2026 - 2027г.
Офисы в продажу от 1 225 м2 до 7 300 м2
Цена продажи - от 400 000 руб/м2
